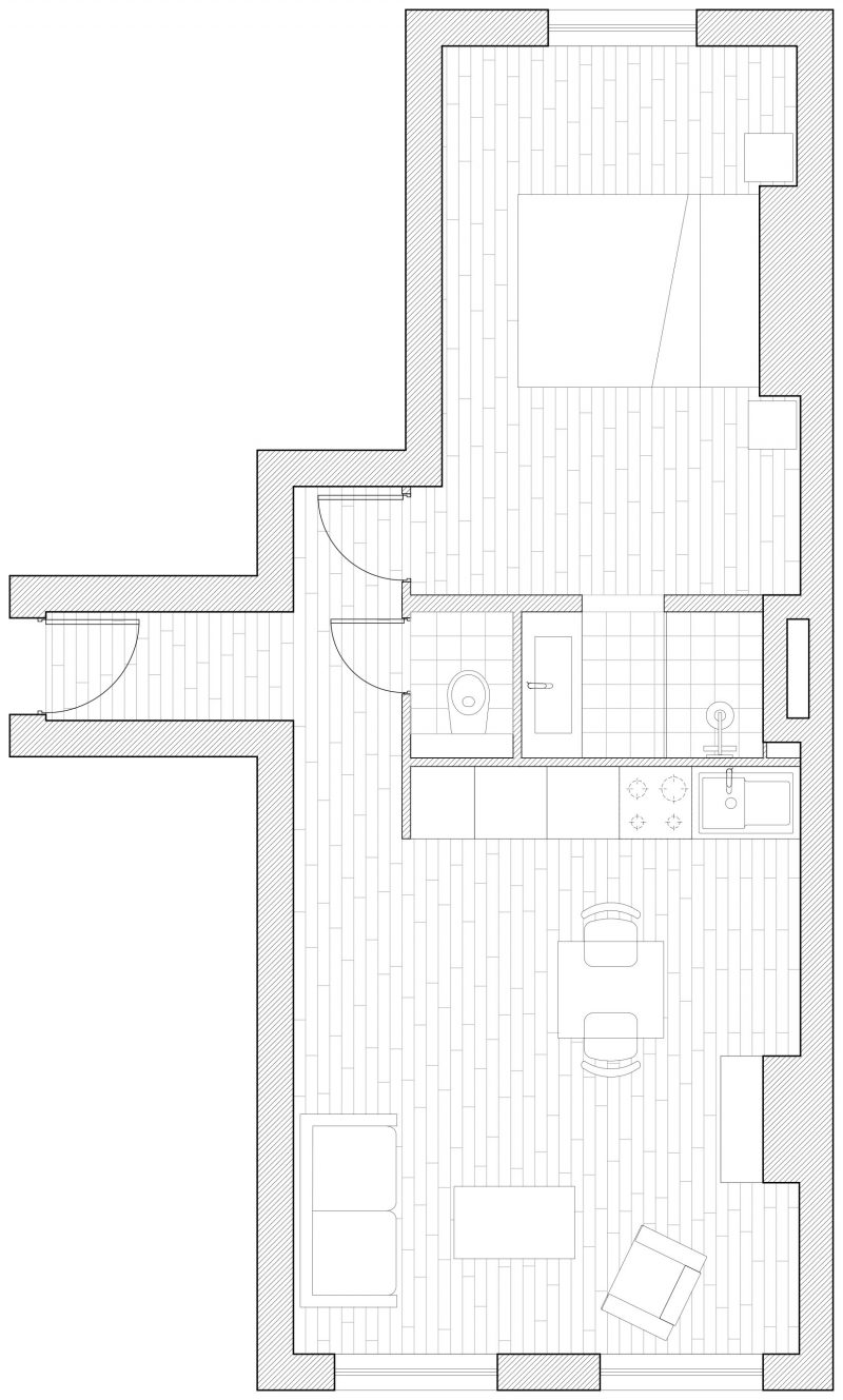
OBERKAMPF OBERKAMPF Restructuration complète d’un appartement parisien Lieu : Paris, 10ème, France Surface : 50 m² Budget : 50 000 euros TTC Livraison : 2017 Mission : complète + conception du mobilier Plan de l’état existant Plan du projet Share: Twitter Facebook Google+